Proyecto de vivienda unifamiliar en la comarca de Ulzama. Esta joven pareja buscaba una vivienda moderna y atractiva ubicada en un pueblo tradicional y hogareño. El resultado fue el contraste entre el exterior clásico de cubierta de teja y sillería en zócalos con el amplio, luminoso y sofisticado espacio interior. En él también se puede apreciar este contraste gracias a la gran estructura de madera de la cubierta.
Larraintzar, Navarra
2019

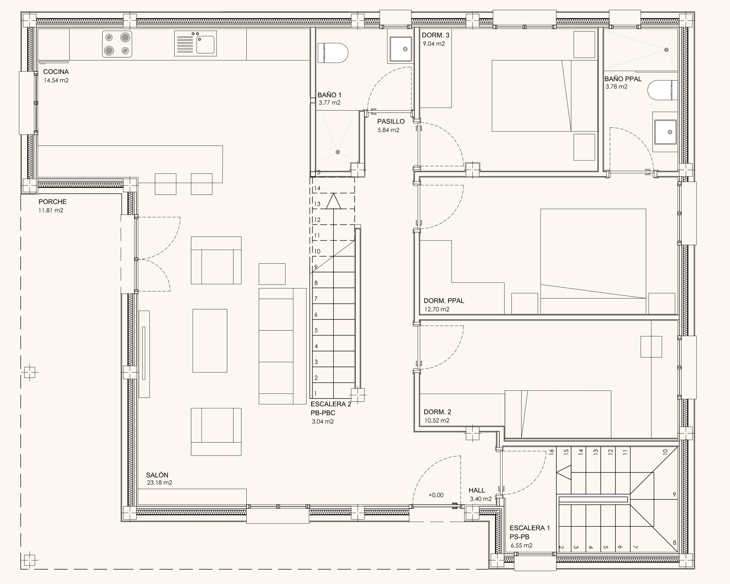
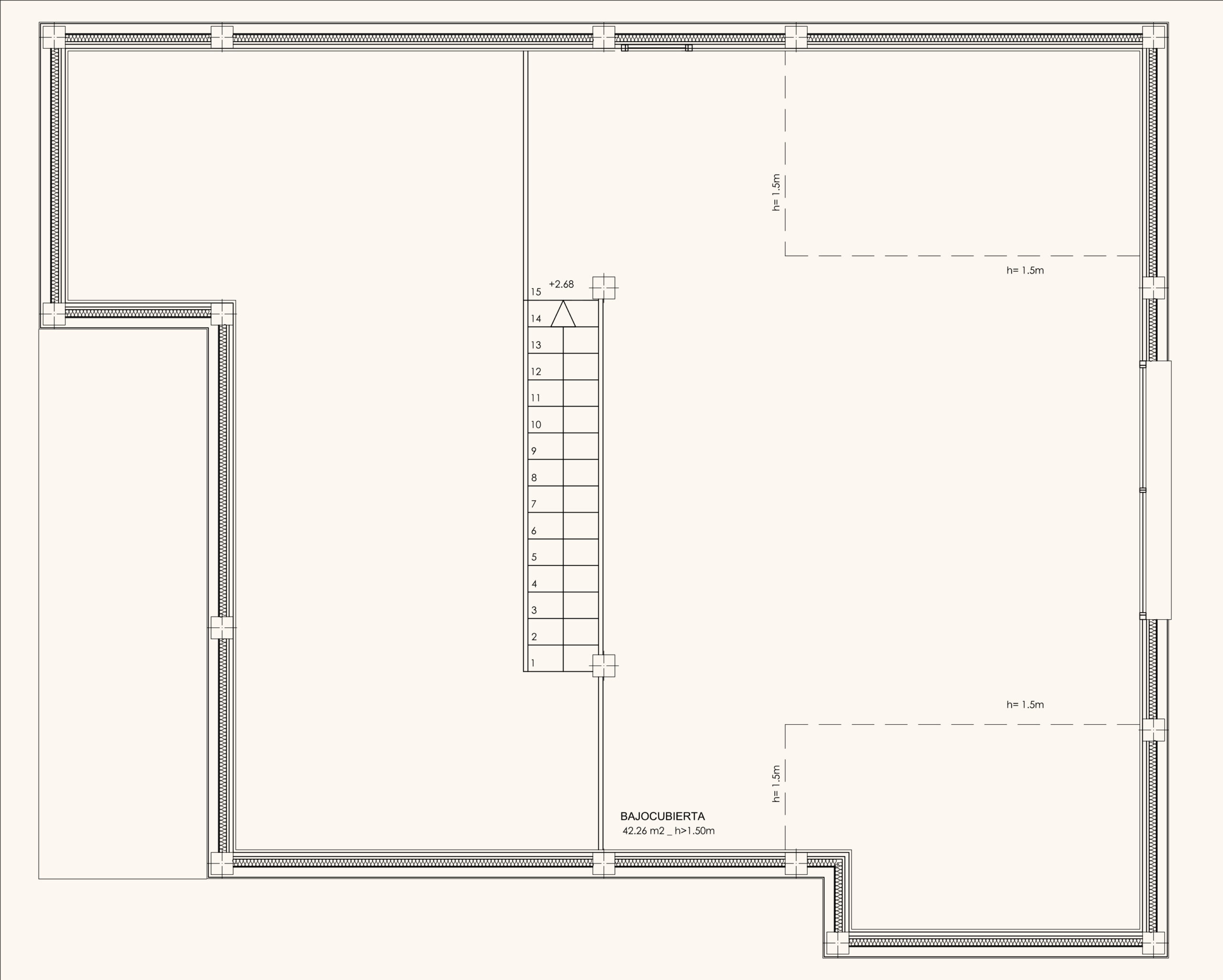
El proyecto consiste en una vivienda de obra nueva de 200m2, situada en un paraje privilegiado del municipio de Ulzama. Al contar la parcela con una gran desnivel, se optó por crear un acceso en la planta sótano para el garaje y trastero, ubicando el acceso peatonal principal en el nivel superior, a ras de jardín y de las espectaculares vistas a la montaña. Es en esta planta donde se ubicaron todas las estancias principales de la vivienda, 3 dormitorios, 2 baños y salón-cocina-comedor. Por últiumo, debido a la necesidad de la familia de contar con un espacio polivalente, se utilizó parte de la bajocubierta, creando un espacio diáfano que vuelca a la estancia principal de la vivienda. Esta estancia principal de salón-cocina cuenta con una doble altura que aporta un toque de sofisticación a la vivienda, creando un ambiente verdaderamente único.
La doble altura juega un papel importante aportando luminosidad y personalidad al ambiente.


PLANTA BAJA

PLANTA BAJOCUBIERTA
Contamos con la iluminación natural que entra por las ventanas superiores inundando todo el espacio y, por otro lado, la iluminación indirecta utilizada para resaltar la impresionante estructura de madera de la cubierta.
















